


Hotel, Hospitality e Spa
CATEGORIA
LUOGO
Altavilla Vicentina
– VI
ANNO
2022
PROGETTO E REALIZZAZIONE
Bonfante Interior Contractor





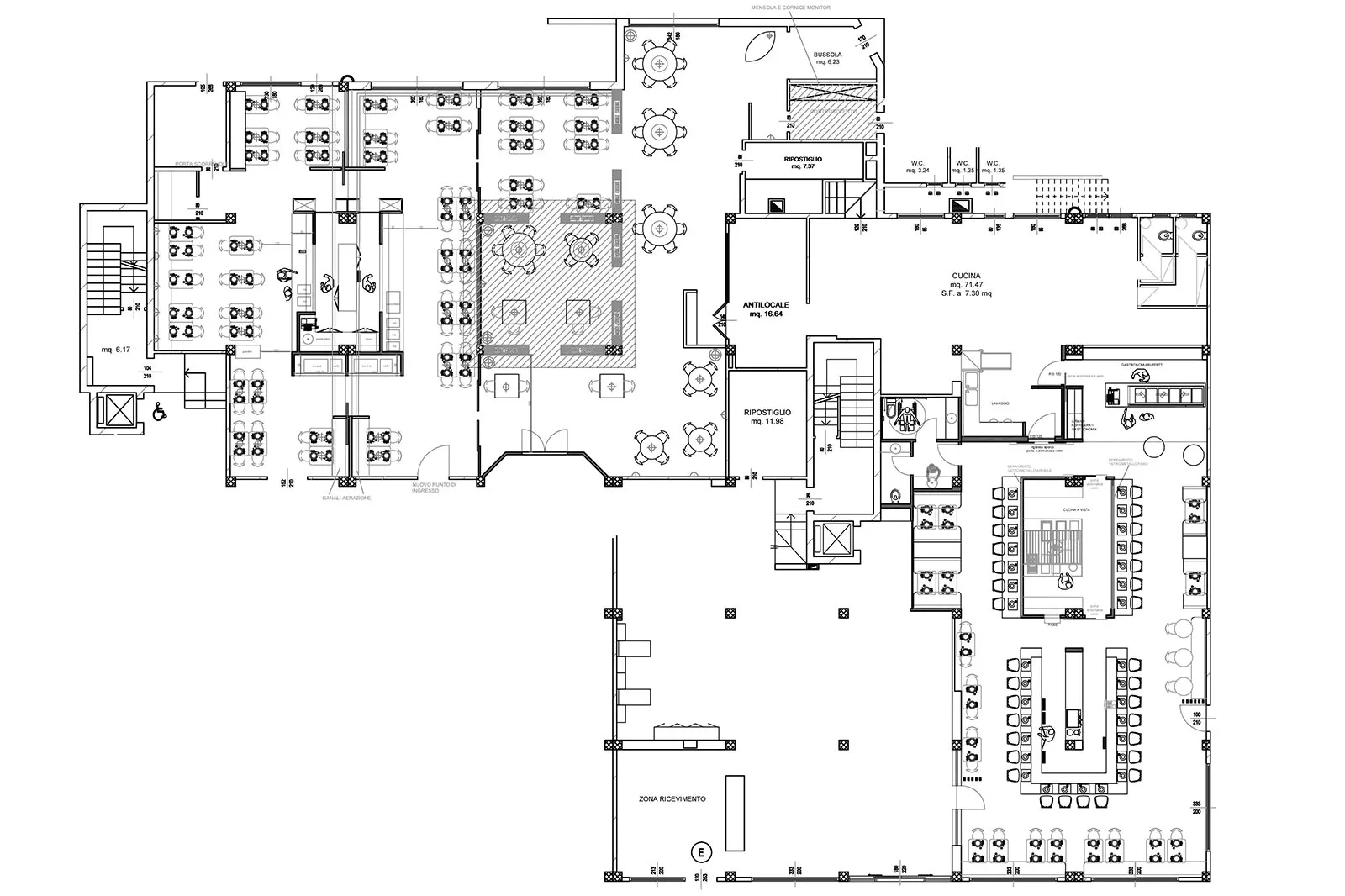
Il nuovo esclusivo layout del ristorante e della sala colazioni mantiene questo hotel un punto di riferimento per una clientela business, ma al tempo stesso un’opportunità per chi è in viaggio di piacere.
L’accurata scelta di materiali e rivestimenti eleganti e funzionali dona agli ambienti un’atmosfera accogliente e raffinata.







Newsletter
Bonfante Interior Contractor
Via Calcara, 48
37053 Cerea, Verona (Italia)
Bonfante Interior Usa Inc
Harding Avenue,
Miami Beach, FL – 33141 (USA)
www.bonfanteusa.com
© 2025 Bonfante – Bonfante Interior Contractor Srl Unipersonale. – P.IVA 04683850236 – REA 440641 – Capitale Sociale I.V. 50.000,00€
Privacy Policy – Termini e condizioni d’uso – Cookie Policy – Credits: 045WEB
© 2025 Bonfante
Bonfante Interior Contractor Srl Unipersonale.
P.IVA 04683850236
REA 440641
Capitale Sociale I.V. 50.000,00€
Credits:045WEB